Архитектурный проект загородного дома
Наша архитектурная проектная мастерская специализируется на проектировании объектов загородного сектора недвижимости. Разработаем индивидуальный архитектурный проект дома, а также все другие важные и необходимые разделы проектной документации для комфортного строительства дома с разумной минимизацией затрат.
На данной странице сайта вы можете как ознакомиться с составом архитектурного проекта (АР - архитектурные решения) загородного жилого дома - узнать что он в себя включает; оценить уровень его проработки, состав чертежей; степень детализации общего вида (3D визуализации), так и заказать индивидуальное проектирование. Ниже показан пример архитектурного проекта загородного дома в частном секторе города Жуковского.
Общая информация
Пример проекта
Дополнительная информация
Для чего нужен архитектурный проект
2 этап работы над Вашим домом начинается с разработки архитектурного проекта. Не пройдя первый этап эскизного проектирования, на втором делать нечего, так как в архитектурном разделе подробно прорабатываются решения дома, утвержденные в эскизном проекте.
Архитектурный проект (раздел АР) нужен для того, чтобы дать детальные и подробные решения элементов дома - состав стен, перегородок, кладочные планы и фасады, узлы и фрагменты, чертежи дверей, окон, их количество, подсчитать ведомость материалов - строительных и отделочных, дизайн фасадов дома - проработка наружной отделки и др.
Что входит в состав архитектурного проекта
Ниже приводим список, что включает в себя архитектурный проект дома. Необходимый состав архитектурного проекта обсуждается с заказчиком и фиксируется в техзадании.
- титульный лист (обложка)
- содержание (ведомость чертежей проекта)
- пояснительная записка
- основные строительные показатели (ТЭП)
- схема генерального плана М1:500 (М1:200)
- ведомость отделки фасадов
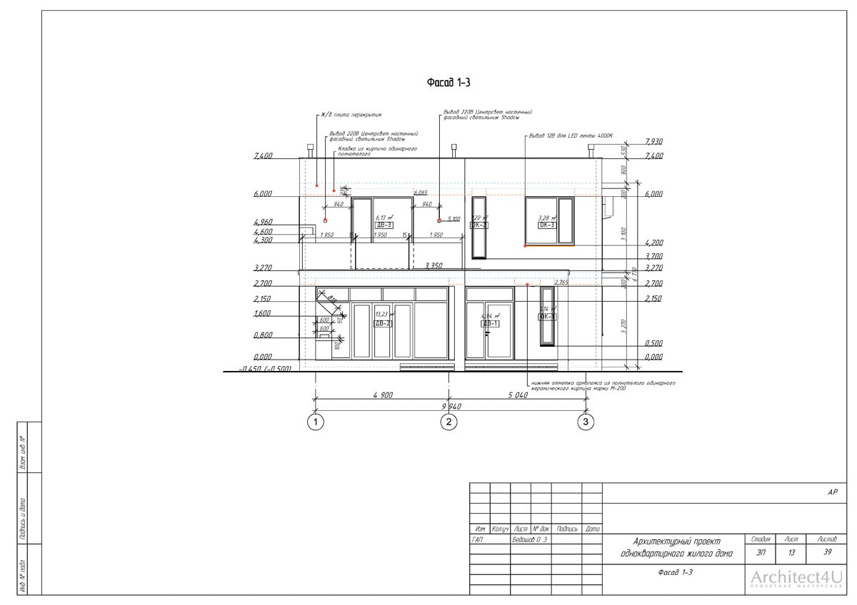
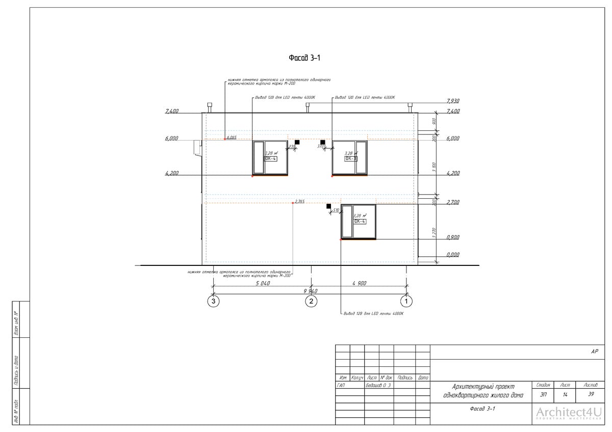
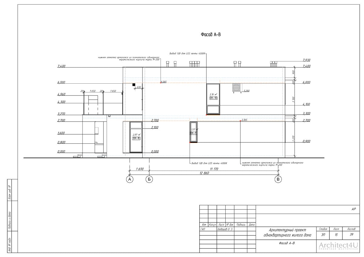
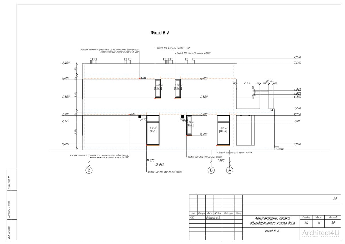
- фасады
- цветовое решение фасадов
- компьютерная 3D визуализация (с дизайном фасадов)
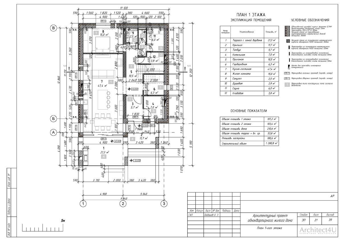
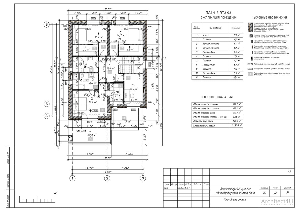
- поэтажные кладочные планы
- отделочные планы
- экспликация полов
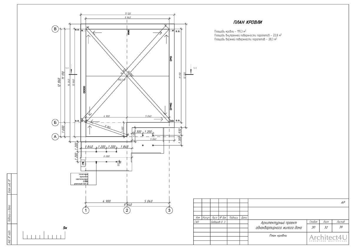
- план кровли
- основные разрезы по дому
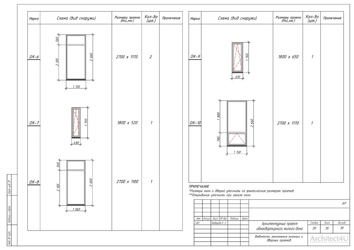
- спецификации заполнения оконных и дверных проемов
- архитектурные решения лестниц, входных групп
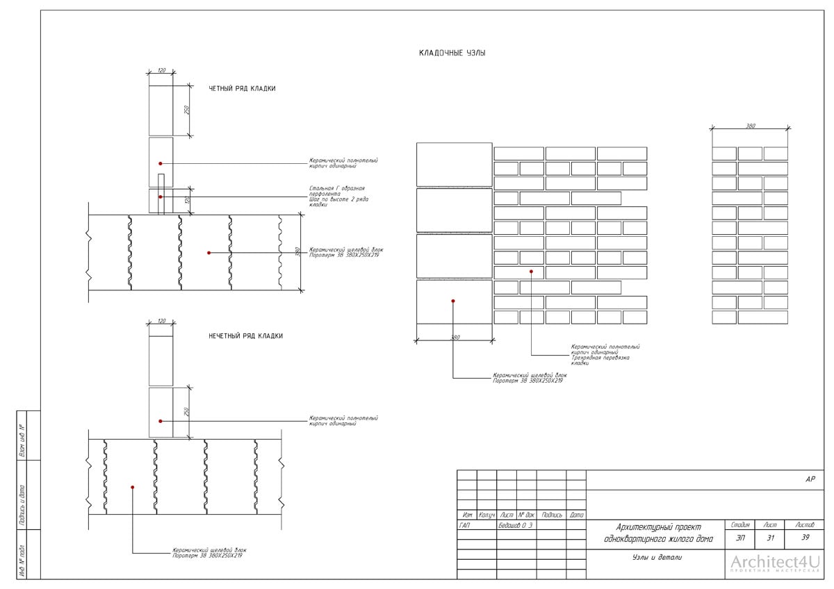
- детали, узлы, фрагменты
- чертежи авторских элементов
Пример архитектурного проекта частного дома
Архитектурное проектирование согласно ГОСТ
Что там с ГОСТом?
При осуществлении проектной деятельности, включая разработку архитектурных проектов на территории РФ рекомендуется к исполнению ГОСТ 21.501-2011 ПРАВИЛА ВЫПОЛНЕНИЯ РАБОЧЕЙ ДОКУМЕНТАЦИИ АРХИТЕКТУРНЫХ И КОНСТРУКТИВНЫХ РЕШЕНИЙ. Настоящий стандарт устанавливает состав и правила оформления рабочей документации архитектурных и конструктивных решений зданий и сооружений различного назначения, а также рабочей документации на строительные изделия.
Авторское право и архитектурный проект
Что там с авторским правом?
Если рассматривать понятие авторского права и архитектурного проекта, необходимо отметить следующее:
- как архитектурный проект полностью, так и его отдельные чертежи и другие данные, определяющие и объясняющие авторский замысел архитектора являются объектом авторского права и защищаются законом РФ
- если рассмотреть все разделы проектной документации, то выражение авторского замысла архитектурного объекта содержится исключительно в разделе архитектурных решений (АР)
- ввиду творческой специфики архитектурной деятельности, права на результат работы (проекты, макеты, изображения, чертежи, описания, построенные объекты (реализация проектов)) не подлежат регистрации
- подтверждение авторских прав архитектора на объекты его творчества происходит согласно положений Гражданского Кодекса РФ
- в случае успешного подтверждения авторских прав на архитектурный проект, либо другие объекты архитектурной деятельности, начинает действовать режим охраны данных прав до конца дней жизни автора - архитектора и в течение 70 лет после
Загородный жилой дом. Проектирование и строительство
Сравнительный анализ материальных затрат
Как правило, стоимость качественно выполненного рабочего проекта в полной комплектации в процентном соотношении составляет порядка 5% от стоимости строительства "коробки" дома. Эскизный проект - 0,8%, архитектурный проект - 0,9%, проект конструктивных решений - 1,4%, проекты инженерных решений - 1,9%.
Стоимость разработки полного рабочего проекта (АР, КР + Инженерия) для строительства индивидуального дома можно узнать на странице онлайн расчета
Есть АР, необходимо переделать фасады
Как помогаем в данной ситуации
Данная ситуация также периодически встречается в нашей практике. Застройщик купил готовый, либо заказал индивидуальный архитектурный проект жилого дома. Приступил к строительству, но в процессе появились идеи по изменению дома и его реконструкции. Мы поможем профессионально решить данные вопросы дистанционно, либо с личным присутствием архитектора на объекте.
К нам обратился клиент с просьбой реконструировать входные группы дома, довести уже начатую отделку фасадов до архитектурной кондиции. Дом строился по архитектурному проекту, в процессе было решено добавить пристройку с отдельных входом, но эстетика и схема водоотведения не была продумана, так как работы по пристройке велись без проекта. У заказчика было четкое представление о том, что ему хотелось бы получить в итоге. Архитекторами мастерской были разработаны несколько базовых вариантов входных групп с декорированием фасадов. На основе финального согласованного варианта отделки был изготовлен рабочий проект.
На странице проектирование фасадов ознакомьтесь с подробным описанием архитектурной услуги, посмотрите примеры наших проектов, свяжитесь с главным архитектором, получите расчет стоимости проектных работ, договоритесь о встрече, либо закажите дистанционное проектирование.
Как заказать архитектурный проект дома
Понравились наши проекты домов и ответственный подход к проектированию, и хотите заказать изготовление индивидуального архитектурного проекта жилого дома? Направляйте заполненное техзадание на электронную почту info@architect4u.ru, либо через мессенджеры. Вашу заявку рассмотрит главный архитектор. Уточним необходимые детали, и подготовим коммерческое предложение, включающее стоимость, сроки выполнения и состав проектных работ. В случае согласования КП переходим к заключению договора.
Онлайн расчет стоимости
Мы предлагаем различные варианты архитектурного проектирования частного жилого дома.
⚠️ Точная стоимость определяется по техническому заданию и может изменяться в течение года (индексация, сезонные факторы). Онлайн-калькулятор отражает ориентировочные значения на основании действующего прайса мастерской (01.01.2026 - 01.05.2026).
Площадь дома
Укажите ориентировочную общую площадь
- Эскизный
архитектурный проект - 60 000 руб.
- Подойдет для тех, кто только приступает к проектированию дома
-
- планировочные решения без детальных размеров
- чертежи фасадов
- разрез
- план кровли
- 3D визуализации в ч/б графике
-
- Срок изготовления проекта: исходя из ТЗ
- Оплата: 70% - аванс, 30% - по завершении проекта
- Заказать
- Рабочий архитектурный проект
- 75 000 руб.
- Для того, у кого уже имеется эскизный проект дома
-
- кладочные планы и фасады с размерами
- разрезы со всеми высотными отметками
- 3D визуализации с проработкой отделки
- ведомости материалов
- решения полов, окон, дверей
- чертежи архитектурных узлов и деталей
- план кровли с размерами
-
- Срок изготовления проекта: исходя из ТЗ
- Оплата: 50% - аванс, 50% - по завершении проекта
- Заказать
- Архитектурно-строительный проект
- 197 000 руб.
- Кто уже готов начать строительство дома, рекомендуется АС
-
- в состав АС (архитектурно-строительный) входит рабочий проект АР - чертежи и ведомости архитектурных решений дома - визуализации, планы, фасады, разрезы, узлы и детали
- и рабочий проект конструктивных решений дома в полной комплектации - чертежи, узлы, детали и ведомости
- фундаменты - КР0
- наземная часть - КР1
- стропильная система кровли - КР2
-
- Срок выполнения работ: исходя из ТЗ
- Оплата: 50% - аванс, далее поэтапно согласно разделам АС
- Заказать
Чтобы уделять максимум внимания каждому объекту, мы берём не более 3 проектов в месяц.
Работа начинается после обсуждения задачи и оформления договора. Оплата - по договору, удобным для вас способом.




















































