Рабочий проект инженерных решений слаботочных сетей таунхауса
Раздел СС - слаботочные сети
Что входит в данный проект
Разрабатываются следующие системы:
- охранная сигнализация
- пожарная сигнализация
- ТВ
- интернет
- видеонаблюдение
- защита от протечек
Проект умного дома является спецразделом инженерного проектирования и не входит в состав данного проекта.
Состав рабочего проекта СС
Что включает в себя рабочий проект слаботочных сетей таунхауса.
- общие данные
- общие указания
- условные графические обозначения
- структурная схема ОПС
- структурная схема систем интернет-доступа, телевидения, видеодомофонной связи, видеонаблюдения, защиты от протечек
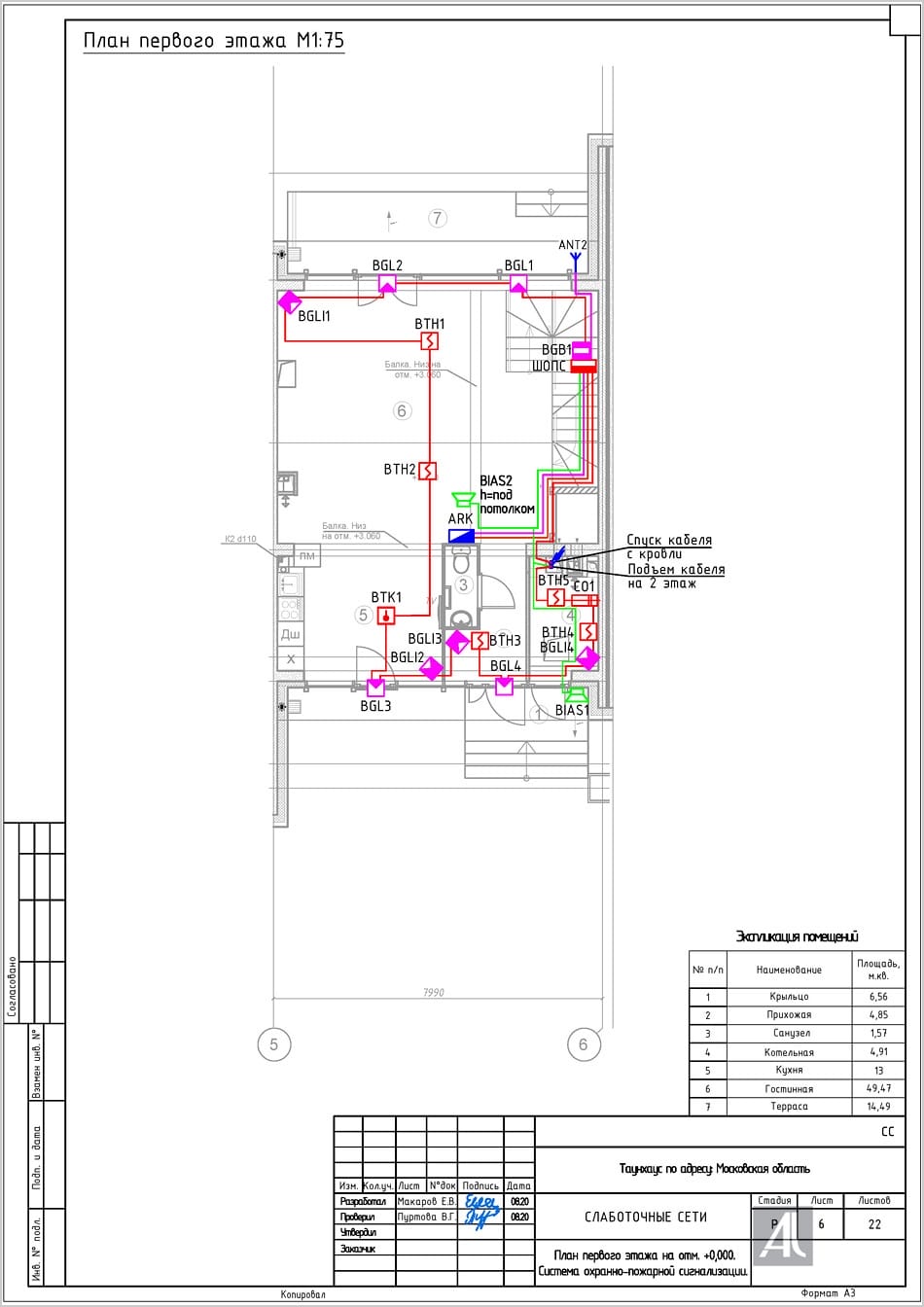
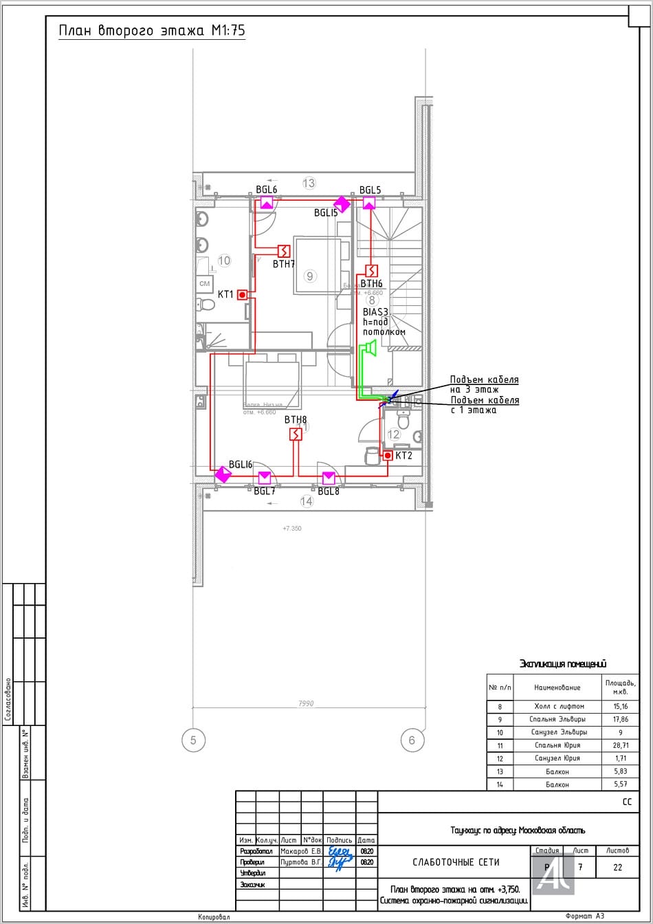
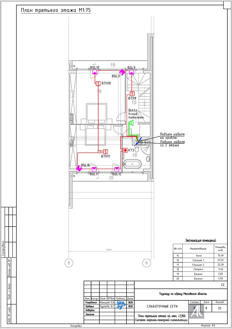
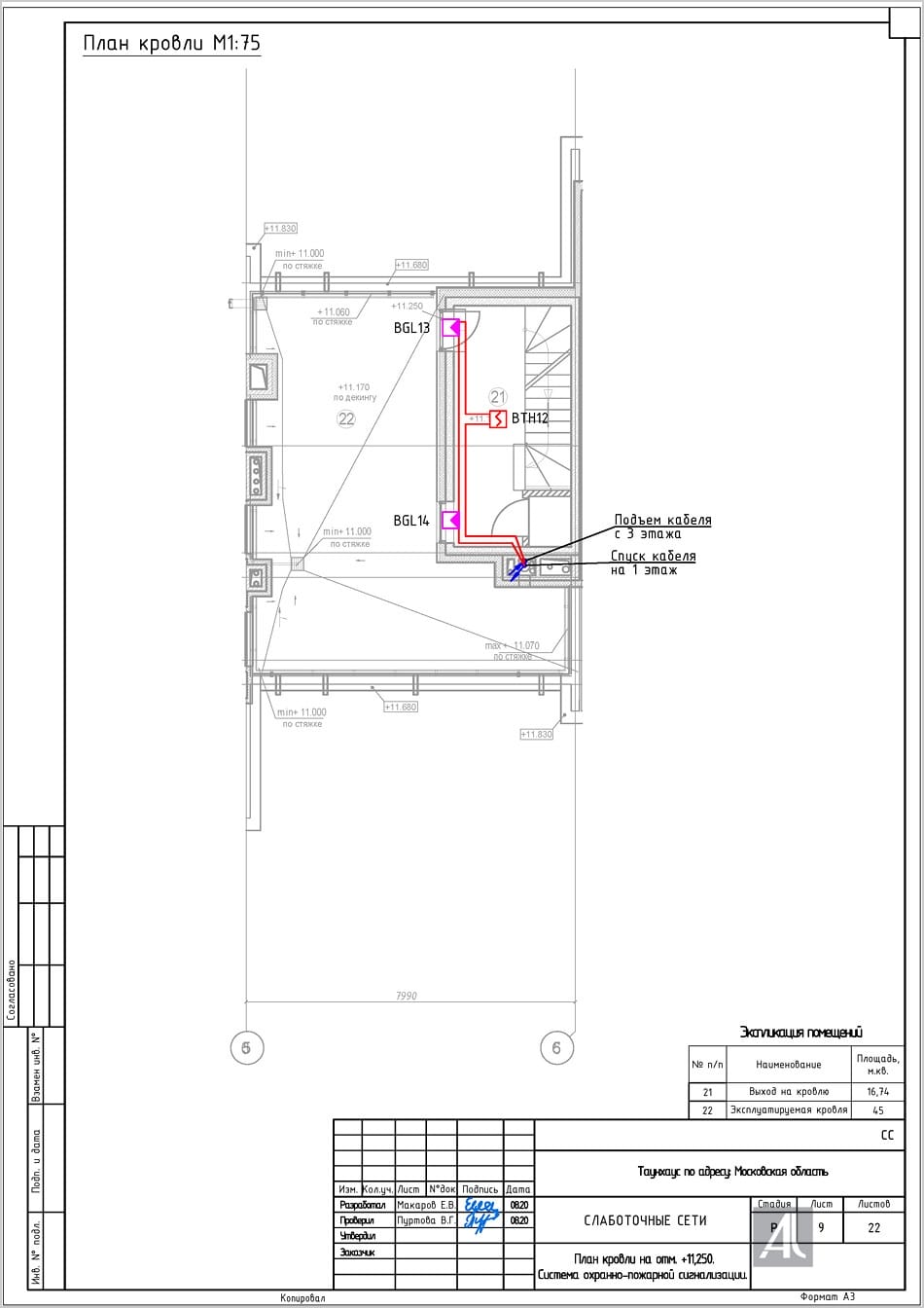
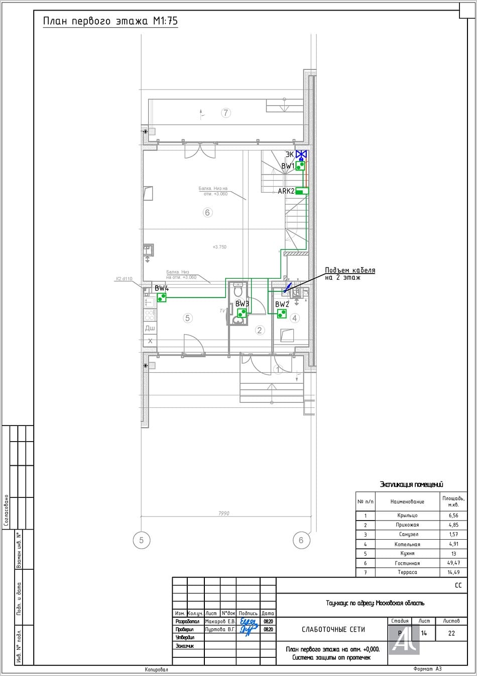
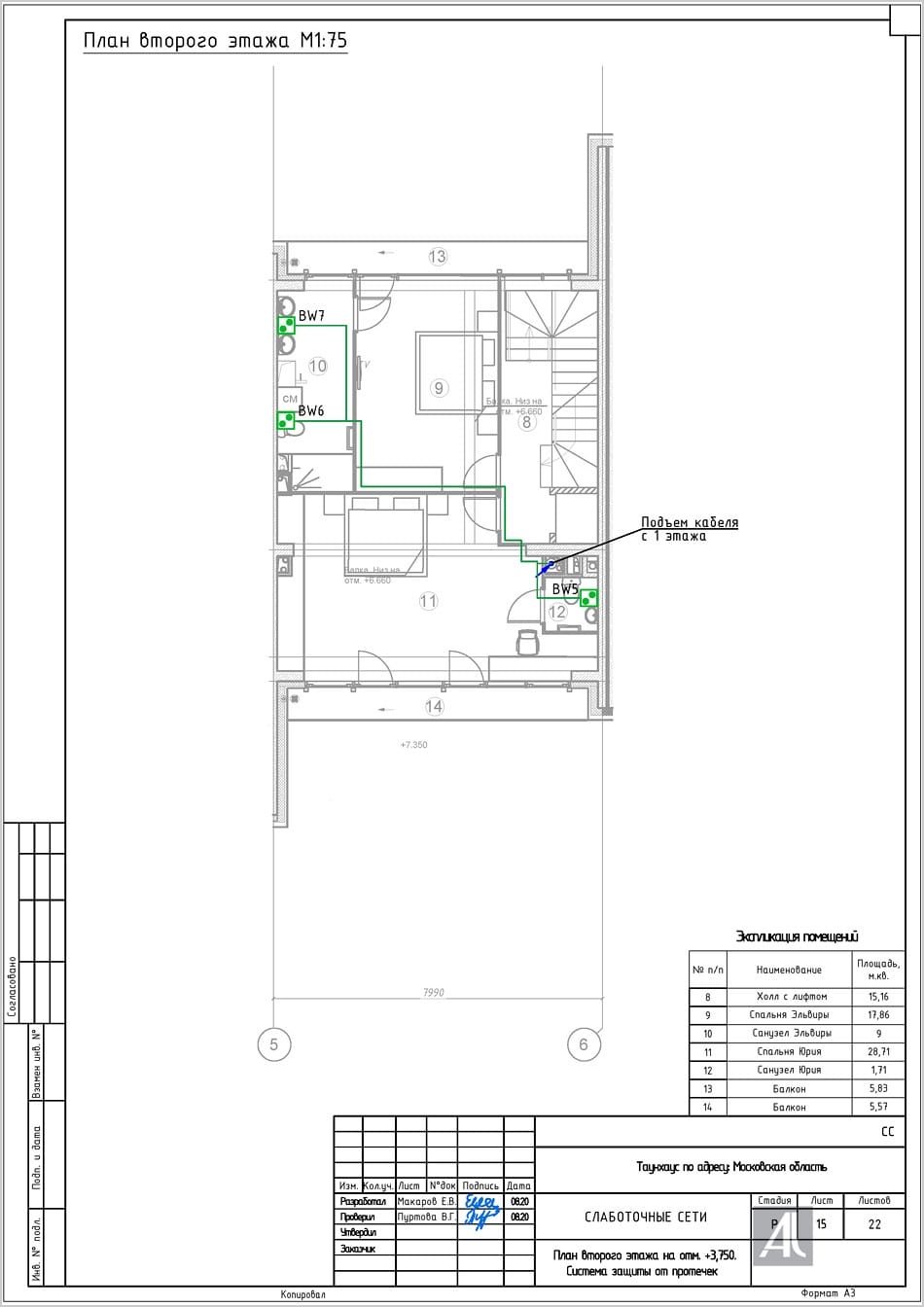
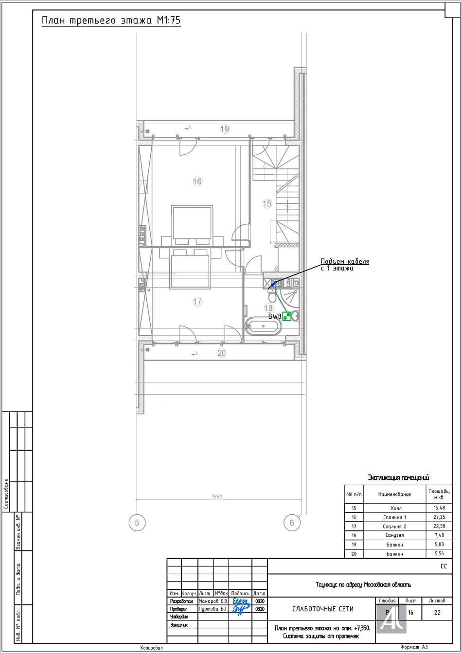
- планы этажей квартиры таунхауса с расположением охранно-пожарной сигнализации
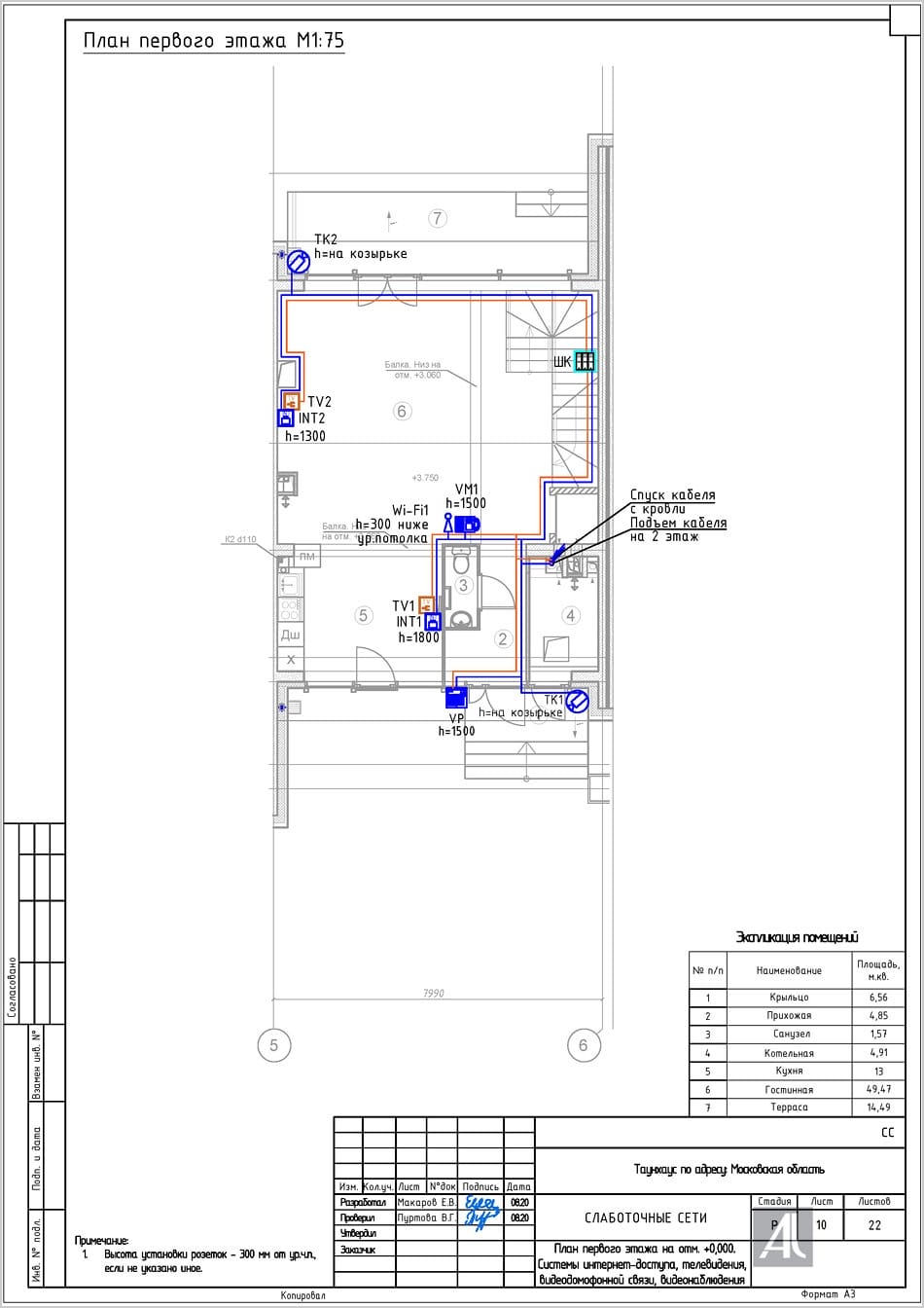
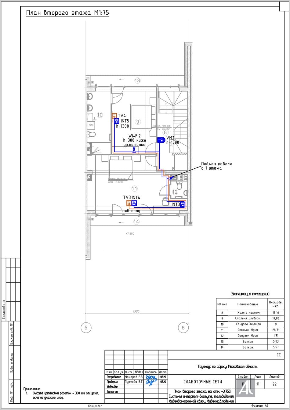
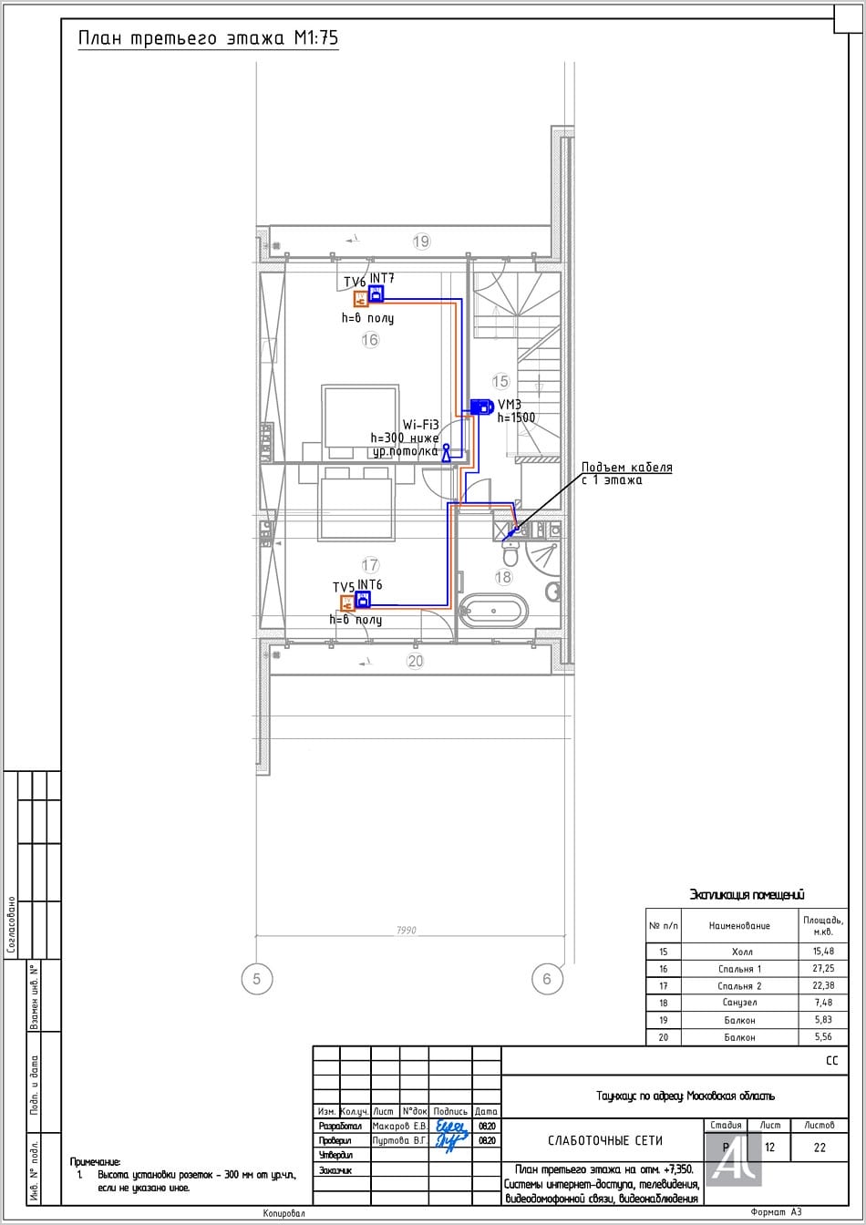
- планы этажей квартиры таунхауса с расположением системы интернет-доступа, телевидения, видеодомофонной связи, видеонаблюдения
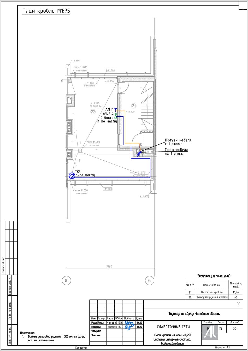
- план кровли - интернет доступ, видеонаблюдение
- поэтажные планы с расположением системы защиты от протечек
- электрическая схема подключения оборудования ОПС
- электрическая схема подключения блока речевого оповещения Рупор
- электрическая схема подключения блока сигнально-пускового С2000-СП1
- расчет емкости источника бесперебойного электропитания
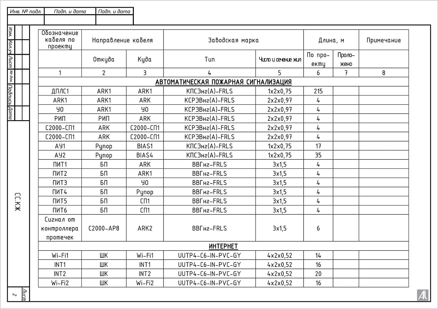
- схемы монтажа и маркировки кабельных линий
- схема соединений контроллера Аквастоп Эксперт
Образец инженерного проекта слаботочных сетей (СС) таунхауса в Москве
Вы ознакомились с составом проекта слаботочных сетей таунхауса
Проектирование в соответствии с ГОСТ, СНиП, СП
Все проекты инженерных решений систем слаботочных сетей выполняются в соответствии с требованиями и рекомендациями актуальных нормативных документов и государственных стандартов.
Условные обозначения
ГОСТ - государственный стандарт
СНиП - строительные нормы и правила
СП - свод правил
ПП - постановление правительства
ФЗ - федеральный закон
- ПП РФ №87 О составе разделов проектной документации и требования к их содержанию
- ГОСТ 21.1101-2013 СПДС. Основные требования к проектной и рабочей документации
- ГОСТ Р 21.1703-2000 Система проектной документации для строительства. Правила выполнения рабочей документации проводных средств связи
- ГОСТ 21.406-88 Система проектной документации для строительства. Проводные средства связи
- ГОСТ Р 53246-2008 Информационные технологии. Системы кабельные структурированные. Проектирование основных узлов системы. Общие требования
- ГОСТ Р 51558-2000 Системы охранные телевизионные. Общие технические требования и методы испытаний
- СП 5.13130.2009 Установки пожарной сигнализации и пожаротушения автоматические. Нормы и правила проектирования
- ФЗ №123 Технический регламент и требования пожарной безопасности
- СП 31-106-2002 Проектирование и строительство инженерных систем одноквартирных жилых домов
- ПУЭ Правила устройства электроустановок. Издание 7
- ГОСТ 31565-2012 Кабельные изделия. Требования пожарной безопасности
Стоимость проекта слаботочных сетей
Задать интересующие вопросы главному инженеру, узнать стоимость и сроки проектирования вы можете через форму связи на нашем сайте.































































