Рабочий проект инженерных решений вентиляции и кондиционирования
Раздел ВиК - вентиляция и кондиционирование
Вентиляция
Для осуществления притока и вытяжки из помещений квартиры предусмотрена система приточно-вытяжной вентиляции.
Предусмотренные проектом системы вентиляции:
- В1 - вытяжная система вентиляции с кухонного зонта (модель определяется заказчиком согласно дизайн проекту - 60 м³/ч (с выключенным вентилятором)
- В2 - вытяжная система вентиляции сан.узлов - 25 м³/ч
- В3 - вытяжная система вентиляции сан.узлов - 50 м³/ч
- В4 - вытяжная система вентиляции сан.узлов - 50 м³/ч
- В5 - вытяжная система вентиляции сан.узлов и постирочной - 130 м³/ч
- В6 - вытяжная система вентиляции гардеробной - 50 м³/ч
- В7 - вытяжная система вентиляции сан.узлов - 60 м³/ч
- В8 - вытяжная система вентиляции сан.узлов - 25 м³/ч
- П1 - приточный воздуховод - 315 м³/ч
- П2 - приточный воздуховод - 250 м³/ч
В качестве системы приточной и вытяжной вентиляции используется общедомовая механическая система вентиляции. Согласно тнхническому заданию от УК требуется предусмотреть доступ к дроссель-клапанам общедомовой системы вентиляции, узлам и агрегатам смонтированного оборудования с установкой технологических люков.
Характеристики вентиляционных систем
Наименование помещения |
Тип установки |
Вентилятор |
Кухня, кабинет |
Haier FCE 051 |
510 м3/час |
Гостиная-столовая |
Haier FCE 102 |
1020 м3/час |
Детские комнаты, гостевая |
Haier FCE 034 |
340 м3/час |
Спальня |
Haier FCE 085 |
850 м3/час |
Кухня |
Вытяжка кухни. Модель опред. заказчиком |
- |
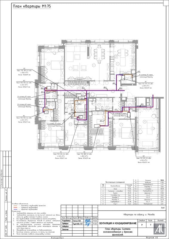
Кондиционирование
Для снятия теплоизбытков в летний период была предусмотрена общедомовая система холодоснабжения. Согласно техническому заданию были подобраны двухтрубные фанкойлы.
Согласно техническому заданию внутренние блоки располагается в помещениях квартиры: (4) гостевой СУ, (18/2) постирочная, (16) санузел 3, (15) санузел 2, (13/2) гардеробная 3, (7) гардеробная 1, (6) коридор 2 по экспликации помещений.
Для предотвращения распространения вибрации монтаж оборудования производить с использованием виброгасителей.
Расчет системы кондиционирования проводился на компенсацию теплопоступлений от наружных стен, перекрытий и окон, а также от людей и оборудования.
Состав рабочего проекта
Ниже приводим список, что включает в себя рабочий проект вентиляции и кондиционирования квартиры.
- ведомость основного комплекта рабочих чертежей проекта ВиК
- пояснительная записка
- изометрическая схема системы вентиляции и кондиционирования
- плана квартиры - вентиляция и кондиционирование - чертеж
- изометрическая схема системы холодоснабжения и дренажа
- плана квартиры - система холодоснабжения и дренажа фанкойлов - чертеж
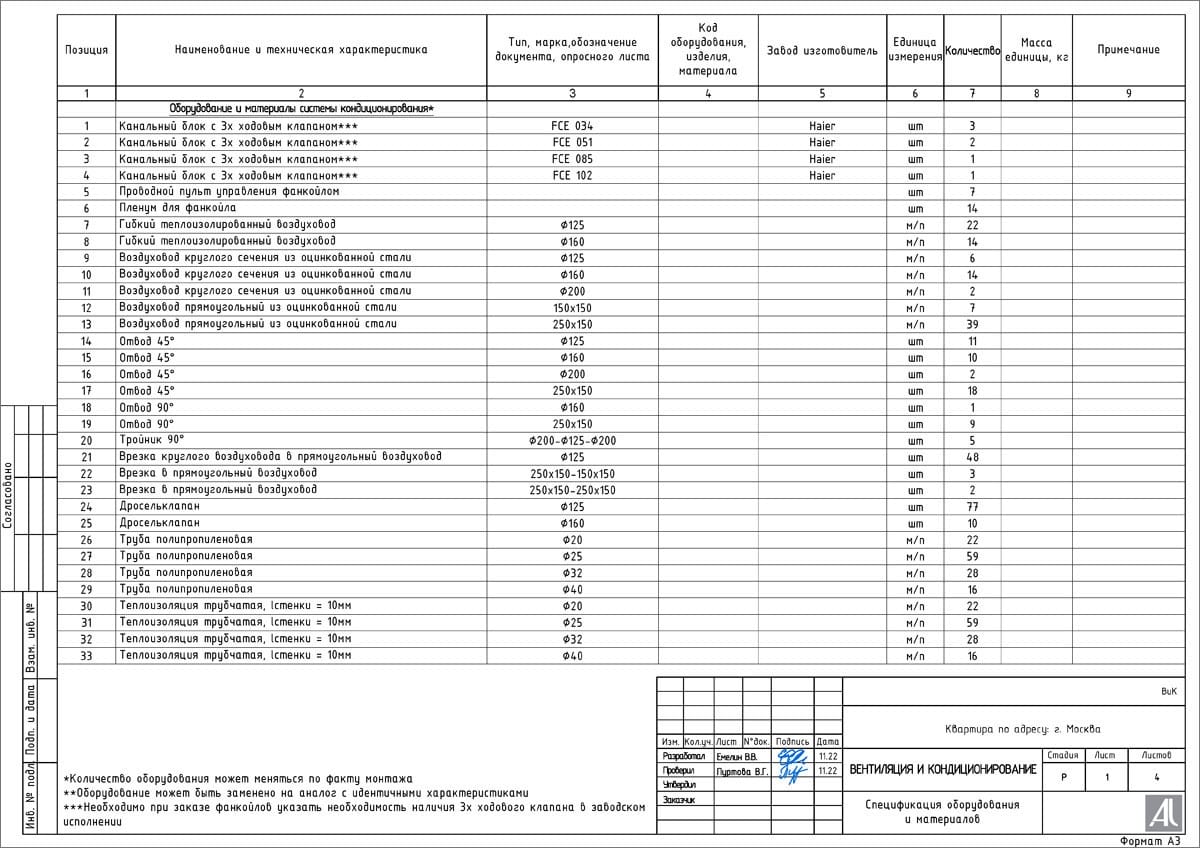
- таблицы ведомостей - спецификации применяемого оборудования и материалов
Пример проекта вентиляции и кондиционирования (ВиК) квартиры в Москве
Вы ознакомились с составом проекта вентиляции (и кондиционирования) квартиры
Проектирование в соответствии с ГОСТ, СНиП, СП
Проекты инженерных решений вентиляции и кондиционирования выполняются в соответствии с требованиями и рекомендациями актуальных нормативных документов и государственных стандартов. Принятые проектные технические решения соответствуют требованиям экологических, санитарно-технических, противопожарных и других действующих правил и обеспечивают безопасную для жизни и здоровья людей эксплуатацию объекта при соблюдении предусмотренных рабочим проектом мероприятий.
Условные обозначения
ГОСТ - государственный стандарт
СНиП - строительные нормы и правила
СП - свод правил
- ГОСТ 30494-2011 Здания жилые и общественные. Параметры микроклимата в помещениях
- ГОСТ 21.1101-2013 СПДС. Основные требования к проектной и рабочей документации
- СП 73.13330.2016 Внутренние санитарно-технические системы
- СП 131.13330.2018 Строительная климатология
- СП 55.13330.2016 Дома жилые одноквартирные
- СП 54.13330.2016 Здания жилые многоквартирные
- СП 60.13330.2016 Отопление, вентиляция и кондиционирование
- СП 50.13330.2012 Тепловая защита зданий
- СП 31-106-2002 Проектирование и строительство инженерных систем одноквартирных жилых домов
- СП 51.13330-2011 Защита от шума
- СП 7.13130.2013 Отопление, вентиляция и кондиционирование. Противопожарные требования
- ГОСТ 21.602-2016 Правила выполнения рабочей документации отопления, вентиляции и кондиционирования
Стоимость проекта электроснабжения
Задать интересующие вопросы главному инженеру, узнать стоимость и сроки проектирования вы можете через форму связи на нашем сайте.

















