проект водоснабжения коттеджа в благовещенске
Аксонометрическая схема оборудования и разводки сантехнических труб коттеджа из рабочего проекта ВК

Водоснабжение и канализация

Индивидуальное проектирование частных жилых домов

Проект инженерных систем частного дома

На этой странице мы разместили рабочий проект ВК (водоснабжения и канализации) частного дома в г. Благовещенск, Амурской области. По данному объекту наша команда выполняла проектирование следующих разделов - архитектура, конструктив, инженерные сети в составе ВК и ВиК.

расположение дома на карте москвы
Территориальное расположение на карте Амурской области
коттедж - тип объекта
Тип объекта - одноквартирный двухэтажный частный жилой дом общей площадью 420 кв.м.
 

Проект ВК содержит

  • общие проектные данные и указания
  • принципиальную схему
  • схему разводки труб канализации и водопровода в аксонометрии
  • схему распределительных коллекторных групп системы водоснабжения
  • чертежи поэтажных планов системы водоснабжения
  • чертежи поэтажных планов системы канализации
  • спецификации и ведомости используемых материалов

Образец проекта водоснабжения

Условные обозначения систем

  • В1 - водопровод хозяйственно-питьевой
  • Т3 - горячее водоснабжение
  • Т4 - рециркуляция водоснабжения
обложка
Титульный лист
ведомость чертежей
Ведомость чертежей
Общие данные проекта. Пояснительная записка
Общие данные проекта. Пояснительная записка
Изометрическая схема инженерных систем ВК
Изометрическая схема инженерных систем ВК - водоснабжение
Схема коллекторных групп
Схема коллекторных групп
План водоснабжения систем В1, Т3, Т4 - 1 этаж
План водоснабжения систем В1, Т3, Т4 - 1 этаж
План водоснабжения систем В1, Т3, Т4 - помещения
План водоснабжения систем В1, Т3, Т4 - помещения (фрагмент плана этажа)
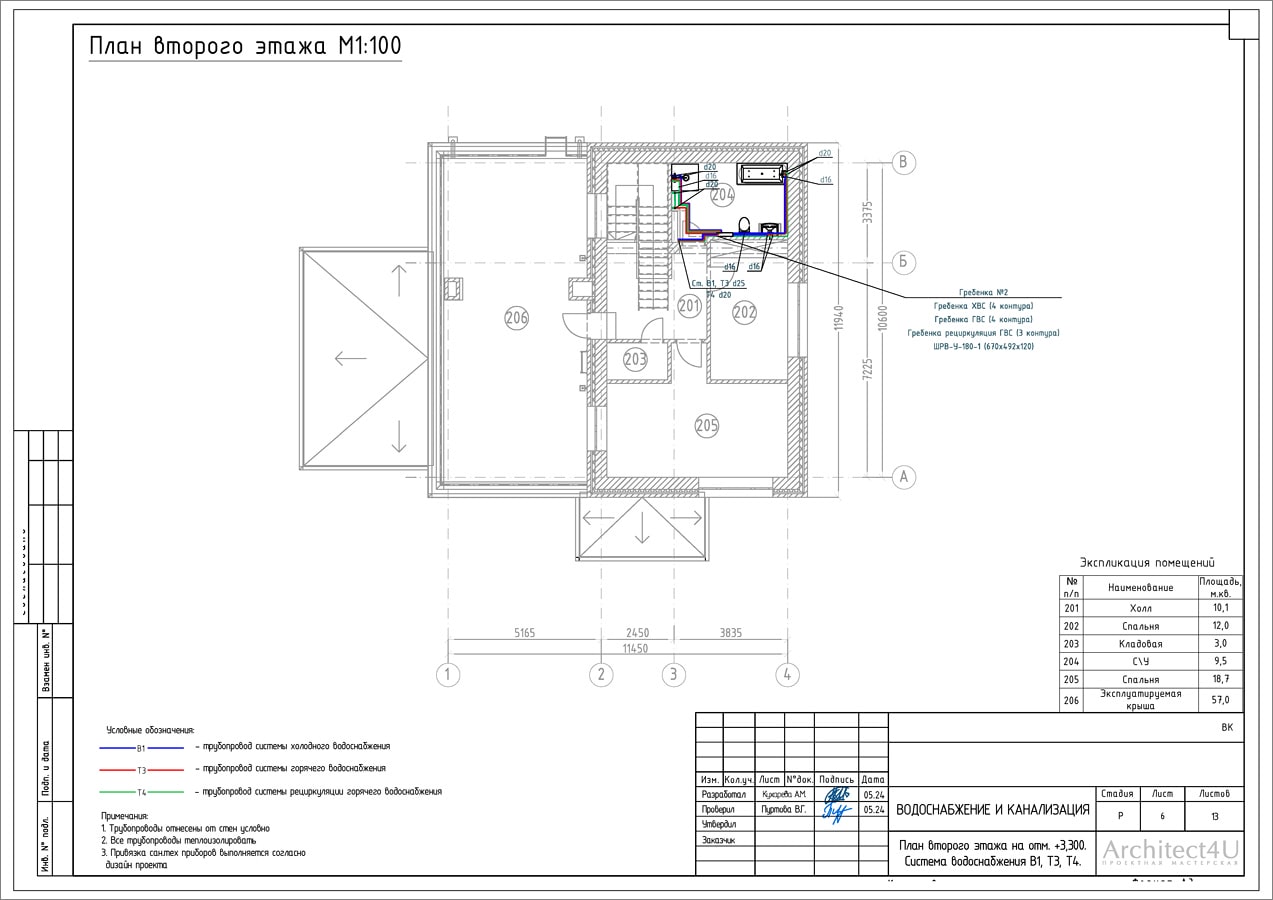
План водоснабжения систем В1, Т3, Т4 - помещения второго этажа
План водоснабжения систем В1, Т3, Т4 - помещения второго этажа
План водоснабжения систем В1, Т3, Т4 - помещение санузла второго этажа (фрагмент)
План водоснабжения систем В1, Т3, Т4 - помещение санузла второго этажа (фрагмент)
Изометрическая схема инженерных систем ВК - канализация
Изометрическая схема инженерных систем ВК - канализация
План техподполья, система канализации К1
План техподполья, система канализации К1
Чертеж плана 1 этажа дома с расположением К1
Чертеж плана 1 этажа дома с расположением К1
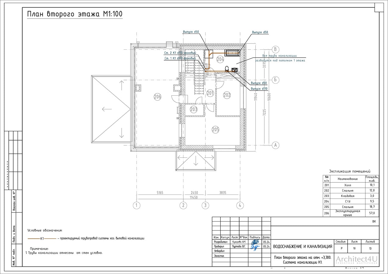
Система канализации К1 на плане 2 этажа
Система канализации К1 на плане 2 этажа
Капельная воронка
Капельная воронка
Спецификация оборудования и материалов
Спецификация оборудования и материалов
Спецификация оборудования и материалов
Спецификация оборудования и материалов
 

Вы посмотрели образец проекта водоснабжения и канализации частного дома

В соответствии с ГОСТ, СНиП, СП

Проектируем системы инженерных решений загородных жилых домов в соответствии с требованиями и рекомендациями нормативных документов и государственных стандартов.

проект согласно гост, снип, сп

Грамотное проектирование системы водоснабжения - залог уверенности и спокойствия. Доверьетсь профессионалам.

Обсудить проект