проектирование фасада частного жилого дома и бани на новой риге
На этом объекте мы делали комплексный дизайн проект отделки фасада и фасадного освещения частного дома в Московской области, 2025

Всегда актуальные фасады домов в 2025 и позднее

Индивидуальное проектирование фасадов

Дизайн фасада - это не просто выбор материалов и цвета, а создание «одежды» для дома, которая будет представлять его долгие годы. Именно этот внешний облик станет вашим постоянным фоном и настроением - от утреннего кофе на веранде до вечерних встреч с друзьями.

Однако стоит признать: всё чаще на улицах можно увидеть дома-близнецы. Строгие прямоугольные формы, панорамные окна, ровные белые стены, плоские кровли… Да, подобная архитектура выглядит свежо и аккуратно, но порой ей не хватает индивидуальности и живого характера.

Поэтому, планируя оформление фасада, важно не просто следовать модным образцам, а искать решения, которые сделают ваш дом неповторимым. Сегодня ценится не столько стиль как набор правил, сколько способность фасада отражать личность его владельцев.

Современные фасады: от стереотипов к индивидуальности

Минимализм, каким мы привыкли его видеть, постепенно уступает место новому прочтению - более живому, эмоциональному и индивидуальному. Сегодня архитекторы ищут баланс между лаконичностью и выразительностью, а фасад становится не просто красивой оболочкой, а характером дома.

Минимализм с эмоцией - это минимализм с теплотой: крупноформатные материалы, тактильные текстуры, аккуратные, но выразительные акценты. Выступающие элементы и геометрические акценты превращают дом в скульптуру: днём и вечером он выглядит по-разному благодаря игре света и тени.

Материалы, которые оживляют архитектуру

Дерево снова в тренде, но уже не в привычном облике. Лиственница, термоясень, тик - их натуральная текстура становится гордостью фасада. Камень - грубый, необработанный, с живой фактурой - добавляет дому характера. Металл перестал ассоциироваться с промзоной: кортеновская сталь меняет оттенки с годами, а перфорированные панели с индивидуальным узором одновременно создают приватность и выразительный визуальный эффект.

Окна без правил

Современные фасады смело экспериментируют с формами и расположением окон: угловое остекление, ленточные витражи, асимметричный ритм проёмов. Добавьте мансардные окна или зенитные фонари - и утренний свет будет литься прямо с потолка на обеденный стол.

Цвет, который задаёт настроение

Классическая «троица» - белый, серый, чёрный - по-прежнему актуальна, но ей на смену приходят природные оттенки: охра, терракота, глубокий зелёный. Они помогают дому слиться с ландшафтом. Контрастные детали - тёмные рамы, яркая дверь, резкий переход цвета на фасаде - добавляют архитектуре выразительности.

Эклектика нового времени

Сегодняшняя эклектика - это не хаос, а гармоничный синтез. Японский минимализм соединяется со скандинавским теплом, классические пропорции - с панорамным остеклением, средиземноморская лёгкость - с немецкой функциональностью. В результате рождаются фасады, которые невозможно отнести к конкретному стилю, но они притягивают взгляд.

Когда технологии становятся дизайном

«Умный дом» включает и фасад: адаптивное освещение, интегрированные солнечные панели, умное стекло, меняющее прозрачность. Эти решения не только функциональны, но и создают новые визуальные приёмы.

Ландшафт как продолжение фасада

Лучшие проекты стирают границу между домом и садом: зелёные стены, озеленённые кровли, террасы с растениями. Дом будто становится частью природы, а не отдельным объектом.

Практичность и долговечность

Красивый фасад должен быть устойчив к климату, времени и бюджету. Не всегда нужны дорогие материалы - иногда продуманная работа с привычной штукатуркой или сайдингом даёт впечатляющий результат.

Обновление уже построенных домов

Даже если дом уже стоит, его можно «осовременить» с помощью дизайна фасада: сменить цветовую гамму, добавить акценты, изменить входную группу. Часто такие проекты требуют минимальных вложений, но дают заметный эффект.

Дом как отражение личности

Через годы тренды сменятся, а ваш дом останется. Поэтому фасад стоит делать не только «по моде», но и «по душе». Хороший проект отражает характер владельца, образ жизни и ценности, превращая здание в архитектурную историю, которой хочется гордиться каждый день.

дизайн фасада двухэтажного дома из керамических блоков в современном стиле фотография исходного состояния фасадов
Дизайн фасада двухэтажного дома из керамических блоков в современном стиле в КП Новорижский - визуализация из проекта | Фотография исходного состояния фасадов - на этом этапе строительства к нам обратился клиент
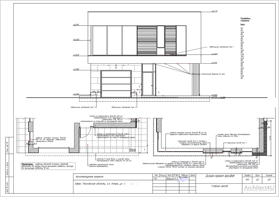
лист из рабочего дизайн проекта фасадов современного дома - чертеж главного фасада дома и фрагменты планов с раскладкой керамогранитной плитки
Чертеж главного фасада дома и фрагменты планов этажей с проектными отметками и комментариями архитектора - автора проекта
лист из рабочего дизайн проекта фасадов современного дома - ведомости отделочных материалов
В каждом рабочем проекте дизайна фасада - подробная ведомость отделочных материалов, и рекомендации по закупке

Консультация архитектора

Получить бесплатную консультацию нашего архитектора вы можете прямо сейчас.

Пообщаемся?

Выберете средство связи с архитектором

Для получения консультации, либо для заказа проекта

whatsapptelegramcall architectemail
Подписывайтесь на нас в соцсетях

Получайте новости первыми

vk  pinterest architect4u